欢迎访问香港合宝典资料大全!

联系我们

全国24服务热线

18091189860
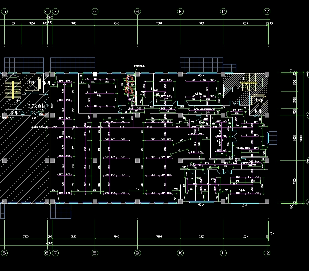
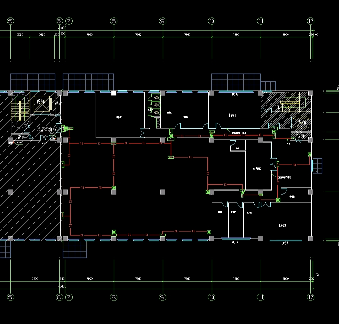
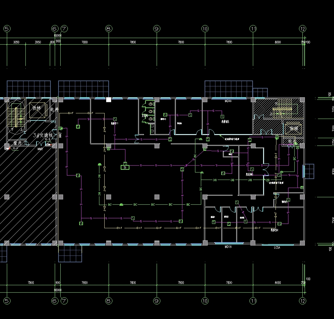
亿鸿维克厂房消防设计
时间:2026-03-31 11:08:26        点击量:【】次

微信图片_20260331110724_429_115.jpg

微信图片_20260331110716_423_115.jpg

微信图片_20260331110718_424_115.jpg

微信图片_20260331110720_425_115.jpg

微信图片_20260331110721_426_115.jpg

微信图片_20260331110722_427_115.jpg

微信图片_20260331110723_428_115.jpg

西安亿鸿维克厂房消防图纸设计

Copyright © 2012-2018 香港合宝典资料大全 版权所有         陕ICP备18007825号-2

x
现在留言,无需等待!

收到你的留言,我们将第一时间与你取得联系