欢迎访问香港合宝典资料大全!
消防设计 图纸审查 资质盖章
全国24服务热线
ABOUT US
我们是一家专业从事消防工程项目设计报审报验及消防施工改造专业单位。主要承接消防设计、消防申报、消防备案、消防审图审核审查消防验收、消防施工及改造为一体的专业化消防企业。包审核包验收、包通过。更大限度地实现“客户利益较大化”为客户省时、省心、省钱、省力,客户的要求就是我们的追求。【服务对象】:学校、医院、厨房、商场、酒店会所、茶楼、健身房、办公室、写字楼、足浴中心、网吧、咖啡厅、培训架构、厂房、...
|
正规公司
工商局正规注册
消防设计资质
消防装修设计资质齐全
消防工程师
建筑消防工程师人员证书齐全
服务保障
专业设计团队随时沟通
24h服务热线:18091189860
西安听界青藤体育文化传播有限公司室内装修工程
陕西宁味小杨餐饮管理有限公司
北京寻幽入微科技有限公司西安第一分公司
丹凤通用机场综合楼消防检测
西安市长安区秦北医院消防设计审图
西安高新区丙类厂房消防设计审图
西安雁塔区小寨成人舞蹈培训消防设计消防验收备案
科泽创能办公室消防设计,超高层办公综合楼
西安森马momopark消防设计
咸阳8000平厂房消防设计审图
1、厨房应设乙级防火门乙级防火窗,不能设置开放的取餐口。建筑设计防火规范 GB5...
1、失火建筑地负一进行冷库装修过程中,施工人员违规动火施工造成起火;2、安全出口...
消防改制以后,消防验收移交住建了,也就是消防验收在住建办理,但是歌舞娱乐游艺营业...
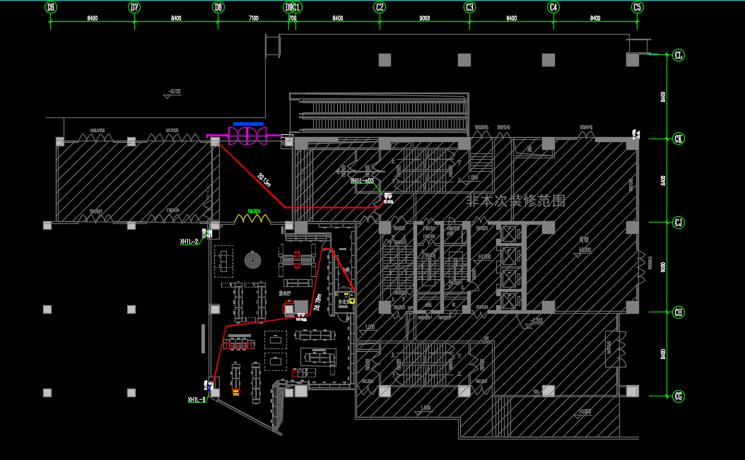
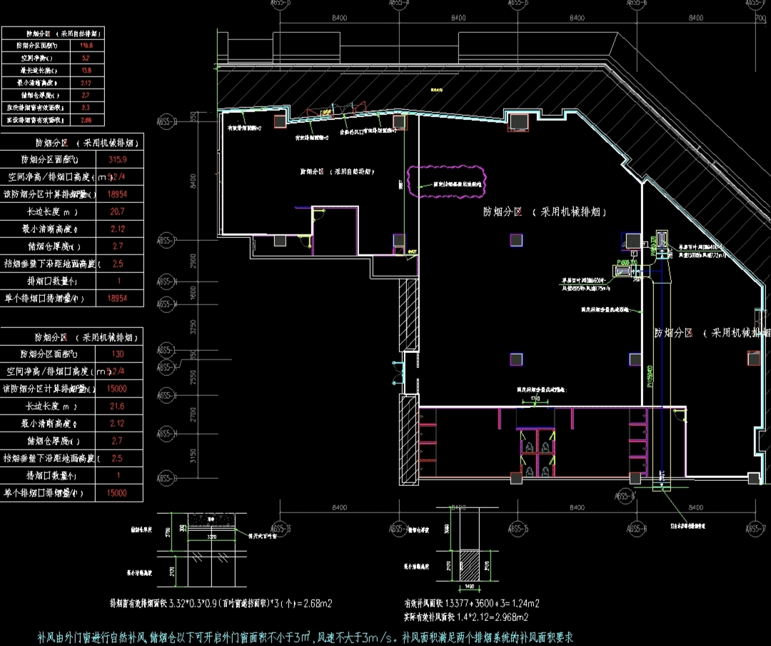
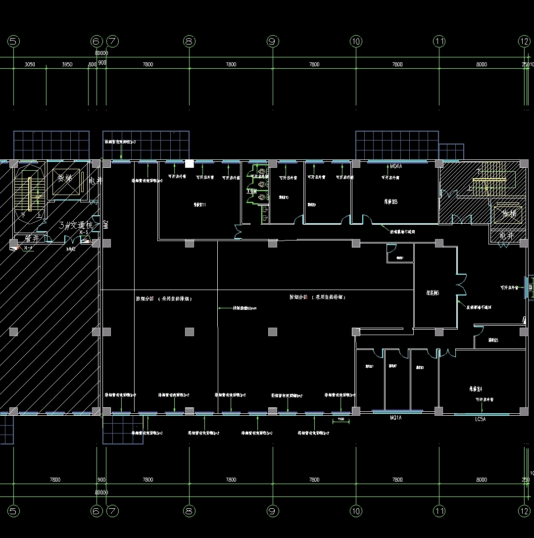
消防设计是在装修设计阶段就要进行对装修平面布置图进行建筑防火规范审核以及调整,平...
Copyright © 2012-2018 香港合宝典资料大全 版权所有 Powered by EyouCms 陕ICP备18007825号-2
收到你的留言,我们将第一时间与你取得联系