欢迎访问香港合宝典资料大全!

联系我们

全国24服务热线

18091189860
消防设计 施工图审查 消防检测维保 消防施工改造 消防验收手续
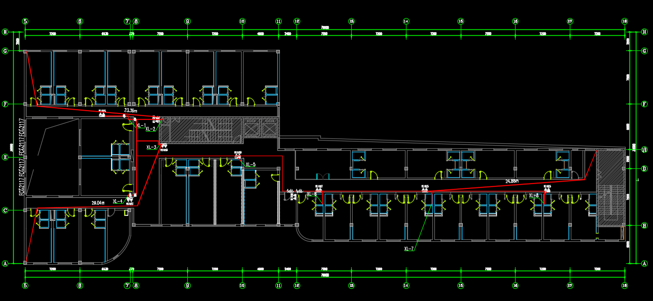
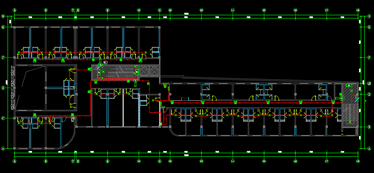
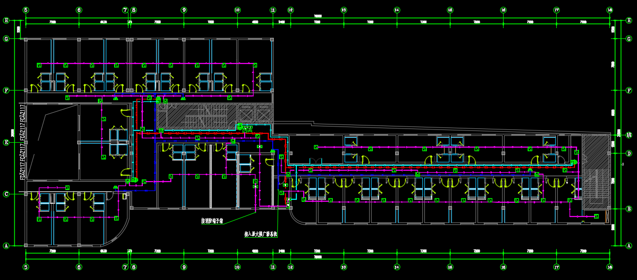
西安同清秦悦酒店
时间:2025-10-24 08:54:55        点击量:【】次

企业微信截图_17612673624349.png

企业微信截图_17612673842272.png

企业微信截图_17612673992229.png

企业微信截图_17612674144714.png

企业微信截图_17612674321327.png

企业微信截图_17612674518872.png

企业微信截图_17612674641889.png


Copyright © 2012-2018 香港合宝典资料大全 版权所有 Powered by EyouCms         陕ICP备18007825号-2

x
现在留言,无需等待!

收到你的留言,我们将第一时间与你取得联系