欢迎访问香港合宝典资料大全!
联系我们
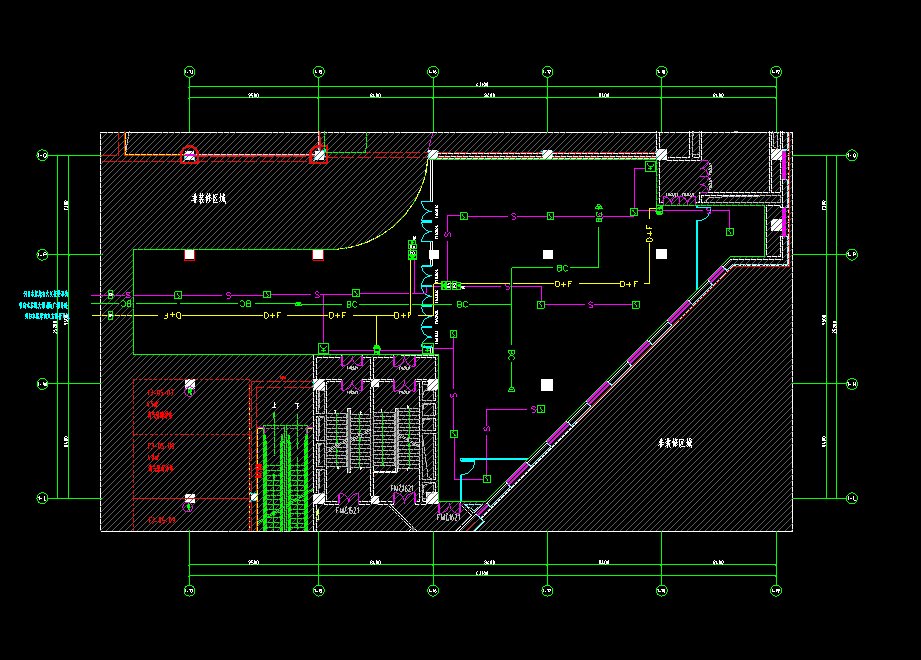
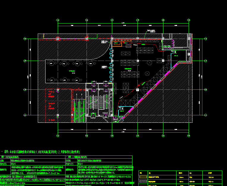
西安疯狂集玩社电玩城项目总结(商业建筑裙房中)
1.需复核计算本防火分区内的非设计区域,疏散宽度是否满足要求。《建筑设计防火规范》(GB50016-2014)(2018年版)第5.5.21条规定。
商业建筑中做局部区域的项目,需要考虑其他区域的疏散情况,如出现本项目设计范围占用大量公共楼梯,需格外警惕其他区域的疏散宽度可能不足
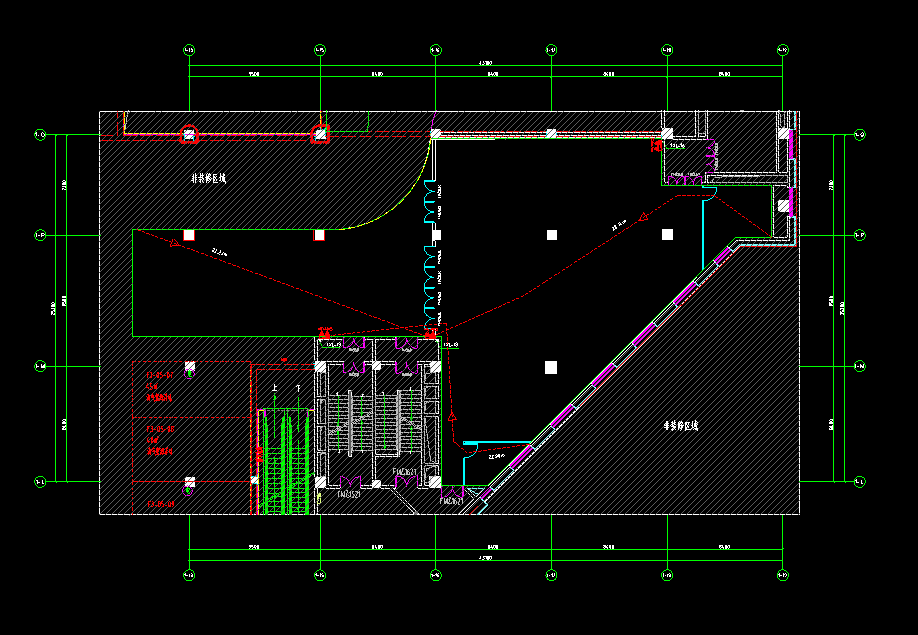
2.电玩城为歌舞娱乐场所不可以用大空间疏散。可参考陕西指南4.0.10疏散。《建筑设计防火规范》(GB50016-2014)(2018年版)第5.5.17.4条的条文说明规定。
电玩城采用大空间计算疏散时,需确保至少两个安全出口为本次设计场所的专用安全出口。
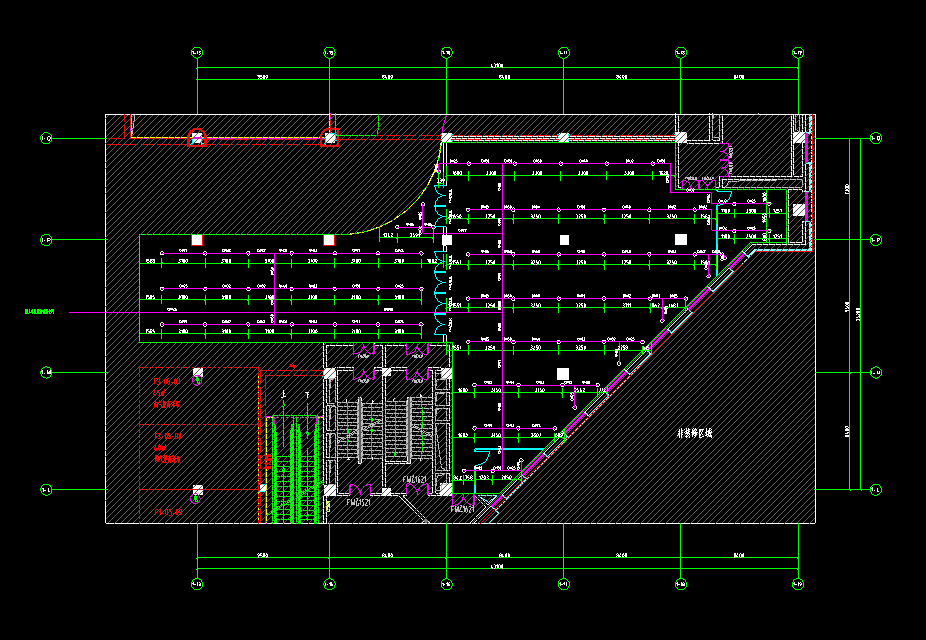
3.设计区域与非设计区域防烟分区处怎么设置,是否增设挡烟垂壁。依据《建筑防烟排烟系统技术标准》(GB51251-2017) 第4.2.1条规定。
设计区域分为内区(歌舞娱乐)+外摆区(商业),所以在设置排烟时,应采用不同的防烟分区,进行划分。同时内区和外摆区域,应采用防火隔墙+乙级防火门,进行分隔
4.地标灯和疏散指示标志方向需保持一致。《消防应急照明和疏散指示系统技术标准》 GB51309-2018第3.2.9.4条规定。







Copyright © 2012-2018 香港合宝典资料大全 版权所有 陕ICP备18007825号-2
收到你的留言,我们将第一时间与你取得联系