欢迎访问香港合宝典资料大全!

联系我们

全国24服务热线

18091189860
消防设计 施工图审查 消防检测维保 消防施工改造 消防验收手续
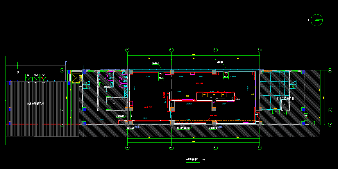
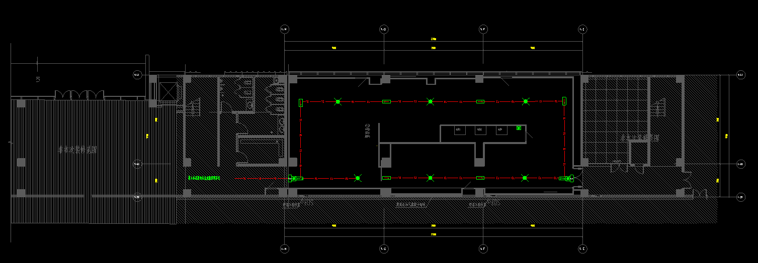
W1- 西电展厅消防设计
时间:2025-10-24 10:26:10        点击量:【】次

微信图片_20251024111522_44_18.png

微信图片_20251024111742_45_18.png

微信图片_20251024111750_46_18.png

微信图片_20251024111758_47_18.png

微信图片_20251024111805_48_18.png

微信图片_20251024111812_49_18.png


Copyright © 2012-2018 香港合宝典资料大全 版权所有         陕ICP备18007825号-2

x
现在留言,无需等待!

收到你的留言,我们将第一时间与你取得联系