欢迎访问香港合宝典资料大全!

联系我们

全国24服务热线

18091189860
消防设计 施工图审查 消防检测维保 消防施工改造 消防验收手续
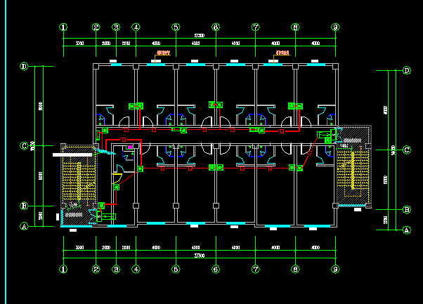
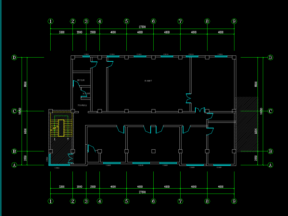
西安市新城区季朵酒店 (个体工商户)消防设计
时间:2025-10-24 11:48:59        点击量:【】次

1b086fe2b99a94c1e8929e656a8998ea.png

670b1f55e7ca9fc5502e114ee7411825.png

49306b9a7e9863ac4da0a439916ce370.png

dd0d608ecd5ef655c7b19ccb9e98a061.png

e9772b43821e19fb198ceb4b2f2ccb5f.png

f3e0446d5fbe20552c144ba9c368ca36.png

fe755ed52489fa02da025295dd894477.png


Copyright © 2012-2018 香港合宝典资料大全 版权所有         陕ICP备18007825号-2

x
现在留言,无需等待!

收到你的留言,我们将第一时间与你取得联系